8 800 25 070 25
ساعات العمل 9:00-21:00 بتوقيت موسكو
إعادة الاتصال
AR-SA

رودر

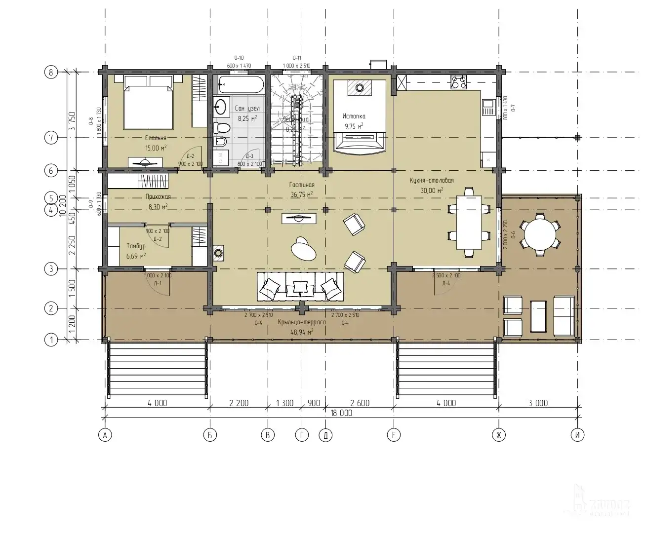
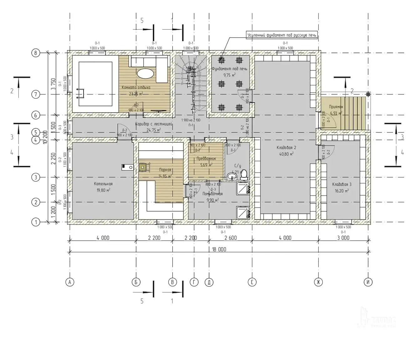
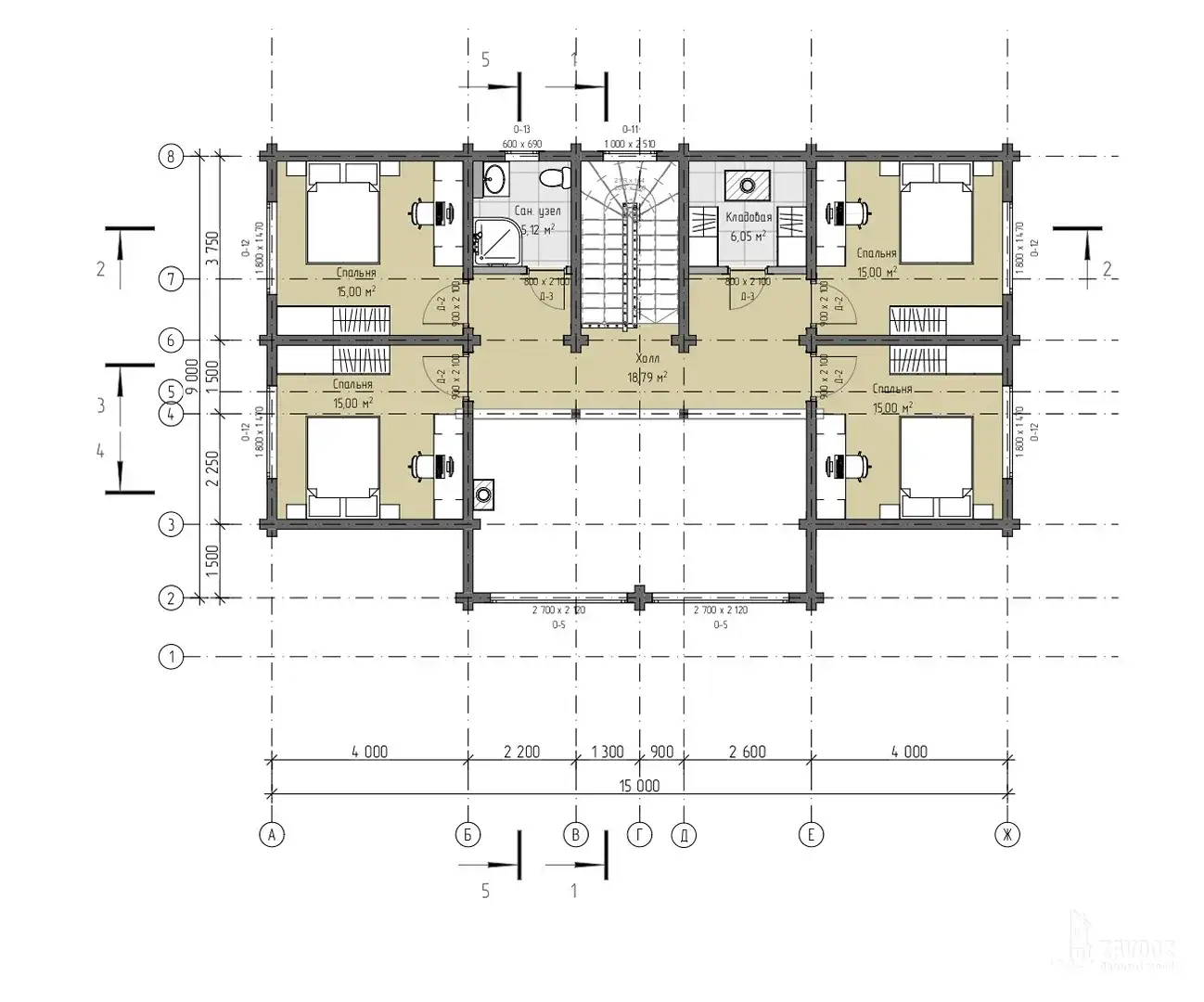
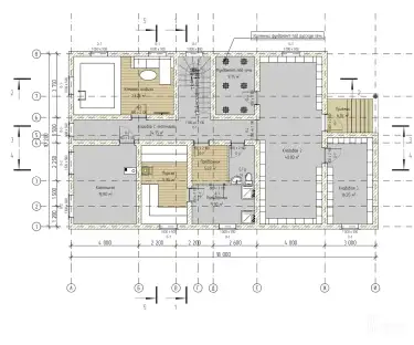
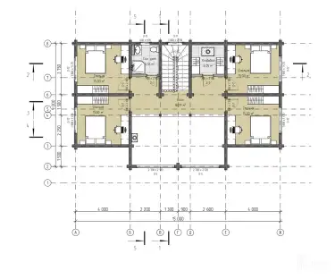
منزل من طابقين مصنوع من الجلولام مع قبو تشغيلي. 5 غرف نوم و 3 حمامات وغرفة بخار وتراس واسع

المساحة الإجمالية

438 м²

Размер застройки

18х10 м

الطوابق

2

غرف النوم

5

الحمامات

3

سعر مجموعة أجزاء تركيب منزل
من12 702 000 руб.
تحقق من تكلفة البناء مع المدير

التصميم

  • الطابق {رقم الطابق}
  • الطابق {رقم الطابق}

خيارات إضافية

Окна
النوافذ
Двери
الأبواب
Погонаж
القوالب الخشبية
Лестницы
السلالم

المجموعات الكاملة

تقدم مجموعة زافدوز خدمات البناء الجاهزة لمنزل من الخشب الرقائقي أو إنتاج مجموعة أدوات منزلية

  • منزل جاهز للتسليم
  • مجموعة أجزاء تركيب منزل
التصميم
الأساس
مجموعة الحوائط
السطح
الأبواب والنوافذ اختياري
التشطيب اختياري
تدعيمات البناء
سعر مجموعة أجزاء تركيب منزل
من {السعر}
التصميم
مجموعة الحوائط
سعر مجموعة أجزاء تركيب منزل
من {السعر}
صورة الترويج
Зафиксируйте цену 2025 года и стройтесь весной дешевле!
مزيد من التفاصيل