8 800 25 070 25
Режим работы 9:00 - 21:00
Заказать звонок
RU

Ройс

Двухэтажный дом из клееного бруса в современном стиле с мансардой, 4 комнатами, 2 санузлами и гаражом

Общая площадь

299 м²

Размер застройки

13x14 м

Этажей

2

Спален

4

Санузлов

2

Дом можно построить из ваших материалов - подробнее
Цена за домокомплект
от 8 671 000 руб.
Стоимость строительства уточняйте у менеджера

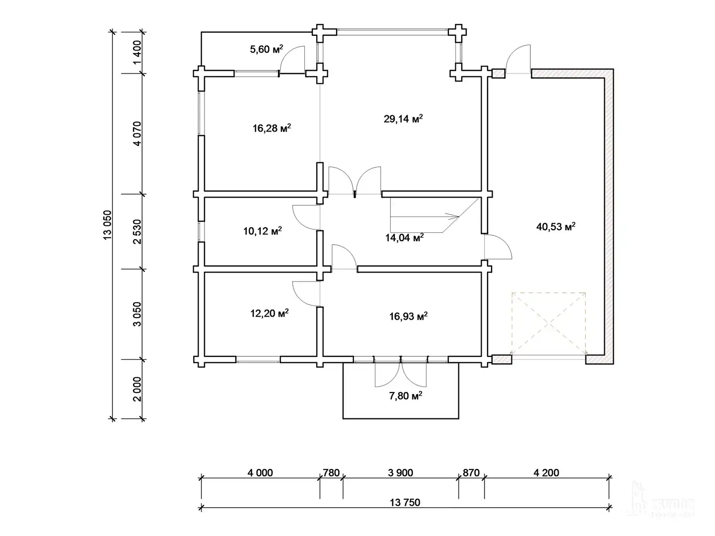
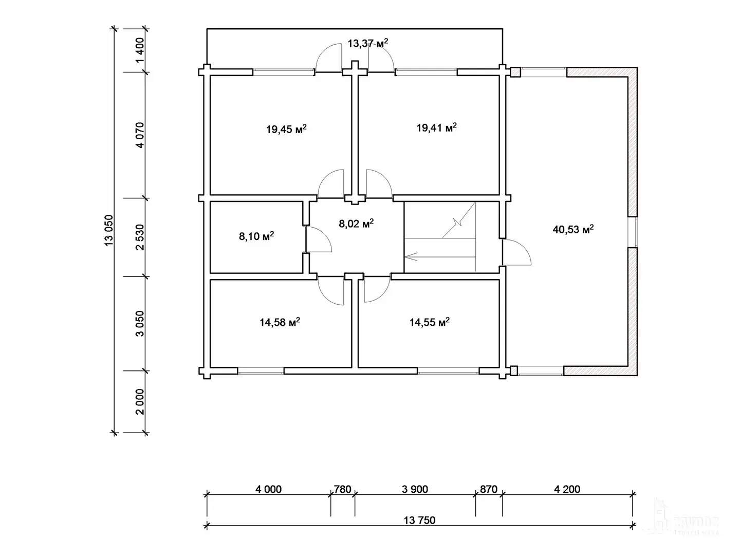
Планировка

  • Этаж 1
  • Этаж 2

Дополнительные опции

Окна
Окна
Двери
Двери
Погонаж
Погонаж
Лестницы
Лестницы

Комплектации

Группа ZAVDOZ предлагает строительство дома из клееного бруса под ключ или производство домокомплекта

  • Дом под ключ
  • Домокомплект
Проектирование
Фундамент
Стеновой комплект
Кровля
Окна и двери опционально
Отделка опционально
Сопровождение строительства
Цена за домокомплект
от 8 671 000 руб.
Проектирование
Стеновой комплект
Цена за домокомплект
от 8 671 000 руб.

Похожие дома

Изображение акции
Новогодняя ёлка желаний:
дарим выгодные подарки для строительства
Подробнее