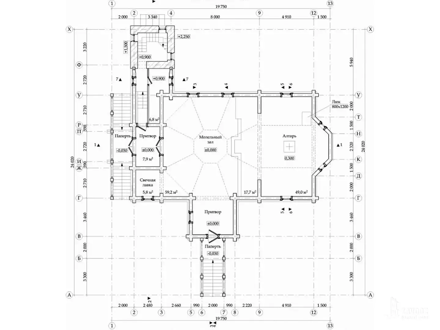
- Запроектированные каркасные перегородки могут выполняться с отделкой различной сложности. Важное условие – соблюдение плавающей системы крепления.
- Вагонка, Имитация бруса, потолочная доска, половая доска, нащельники и молдинги любой конфигурации - собственного производства. В том числе бессучковое исполнение Z-style.
- Сложные декоративные элементы отделки: начиная от наружных порталов, наличников и капителей колонн, закачивая фальш-балками во внутренней отделке.
- Окраска: широкий выбор профессиональных систем окраски. Натуральная основа: водная или масляная.
- Индивидуальные лестницы из ценных пород дерева по индивидуальному проекту.
ZAVDOZ – это крупный производитель отделочного погонажа из дерева. Наш ассортимент рассчитан на потребности абсолютно любого заказчика: отделка потолков, полов, террас, лестницы и ограждение, торцевые накладки, короба, фальшбалки, имитация бруса.