8 800 25 070 25
Режим работы 9:00 - 21:00
Заказать звонок
RU

Стендаль

Двухэтажный дом из клееного бруса в скандинавском стиле с 5 комнатами, 3 санузлами, мансардой и террасой

Общая площадь

289 м²

Размер застройки

10x16 м

Этажей

2

Спален

5

Санузлов

3

Дом можно построить из ваших материалов - подробнее
Стоимость строительства уточняйте у менеджера

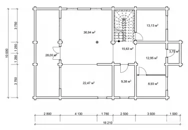
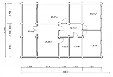
Планировка

  • Этаж 1
  • Этаж 2

Дополнительные опции

Окна
Окна
Двери
Двери
Погонаж
Погонаж
Лестницы
Лестницы

Комплектации

Группа ZAVDOZ предлагает строительство дома из клееного бруса под ключ или производство домокомплекта

  • Дом под ключ
  • Домокомплект
Проектирование
Фундамент
Стеновой комплект
Кровля
Окна и двери опционально
Отделка опционально
Сопровождение строительства
Проектирование
Стеновой комплект

Похожие дома