8 800 25 070 25
Режим работы 9:00 - 21:00
Заказать звонок
RU

Альбе

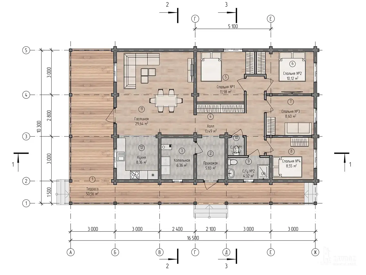
Дом из клееного бруса в стиле шале. 4 спальни, 2 санузла, дополнен большой террасой по периметру дома

Общая площадь

159 м²

Размер застройки

10х17 м

Этажей

1

Спален

4

Санузлов

2

Дом можно построить из ваших материалов - подробнее
Стоимость строительства уточняйте у менеджера

Планировка

  • Этаж 1

Дополнительные опции

Окна
Окна
Двери
Двери
Погонаж
Погонаж
Лестницы
Лестницы

Комплектации

Группа ZAVDOZ предлагает строительство дома из клееного бруса под ключ или производство домокомплекта

  • Дом под ключ
  • Домокомплект
Проектирование
Фундамент
Стеновой комплект
Кровля
Окна и двери опционально
Отделка опционально
Сопровождение строительства
Проектирование
Стеновой комплект

Похожие дома