8 800 25 070 25
Режим работы 9:00 - 21:00
Заказать звонок
RU

Гран-Комбен

Двухэтажный дом из клееного бруса в стиле русская усадьба с 5 комнатами, 3 санузлами, террасой и балконом

Общая площадь

361 м²

Размер застройки

15x20 м

Этажей

2

Спален

5

Санузлов

3

Дом можно построить из ваших материалов - подробнее
Цена за домокомплект
от 10 469 000 руб.
Стоимость строительства уточняйте у менеджера

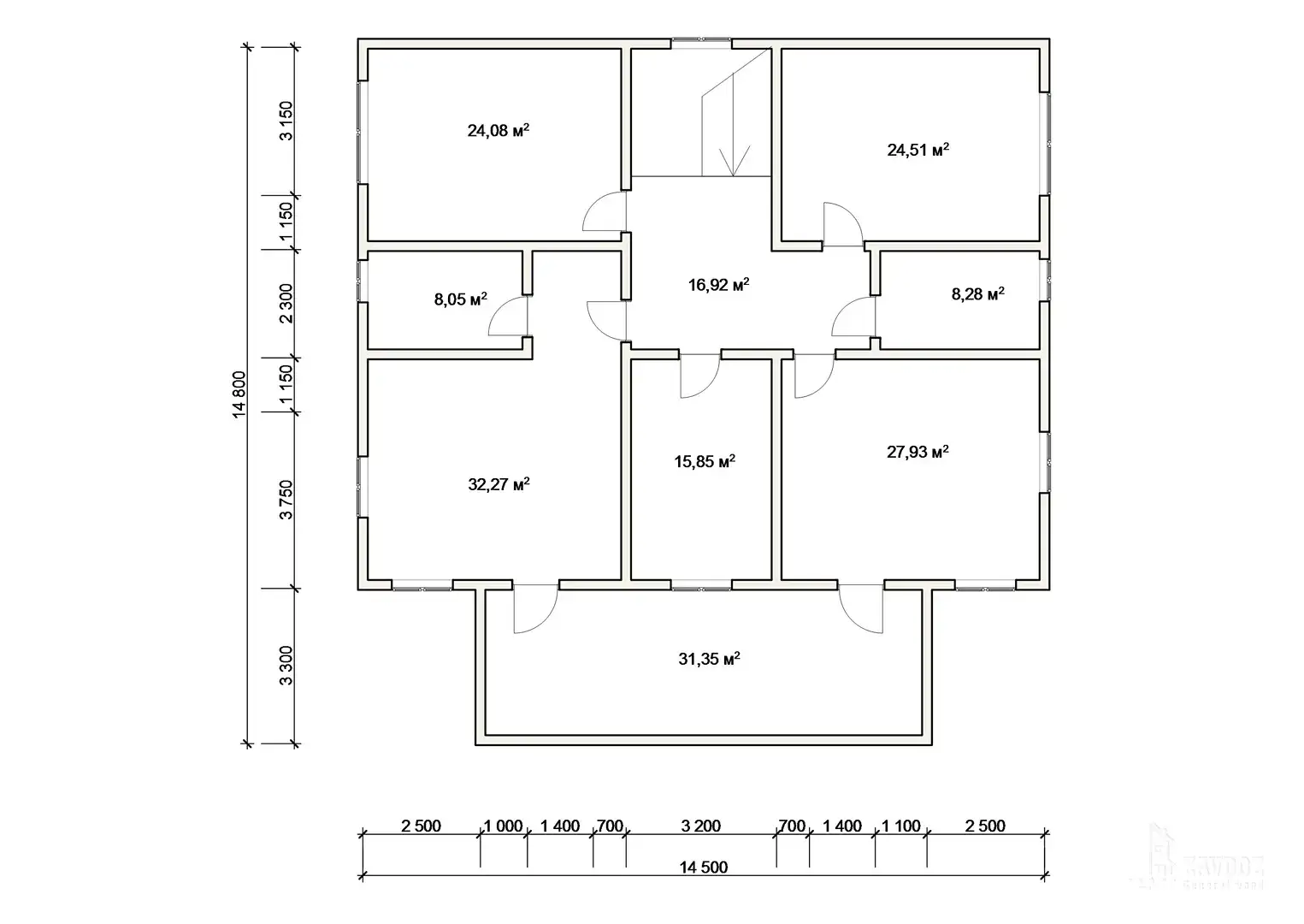
Планировка

  • Этаж 1
  • Этаж 2

Дополнительные опции

Окна
Окна
Двери
Двери
Погонаж
Погонаж
Лестницы
Лестницы

Комплектации

Группа ZAVDOZ предлагает строительство дома из клееного бруса под ключ или производство домокомплекта

  • Дом под ключ
  • Домокомплект
Проектирование
Фундамент
Стеновой комплект
Кровля
Окна и двери опционально
Отделка опционально
Сопровождение строительства
Цена за домокомплект
от 10 469 000 руб.
Проектирование
Стеновой комплект
Цена за домокомплект
от 10 469 000 руб.

Похожие дома

Изображение акции
Новогодняя ёлка желаний:
дарим выгодные подарки для строительства
Подробнее