8 800 25 070 25
Режим работы 9:00 - 21:00
Заказать звонок
RU

Фрибург

Одноэтажный дом из клееного бруса в европейском стиле с 3 комнатами, 2 санузлами и баней

Общая площадь

163 м²

Размер застройки

17x11 м

Этажей

1

Спален

3

Санузлов

3

Дом можно построить из ваших материалов - подробнее
Цена за домокомплект
от 4 727 000 руб.
Стоимость строительства уточняйте у менеджера

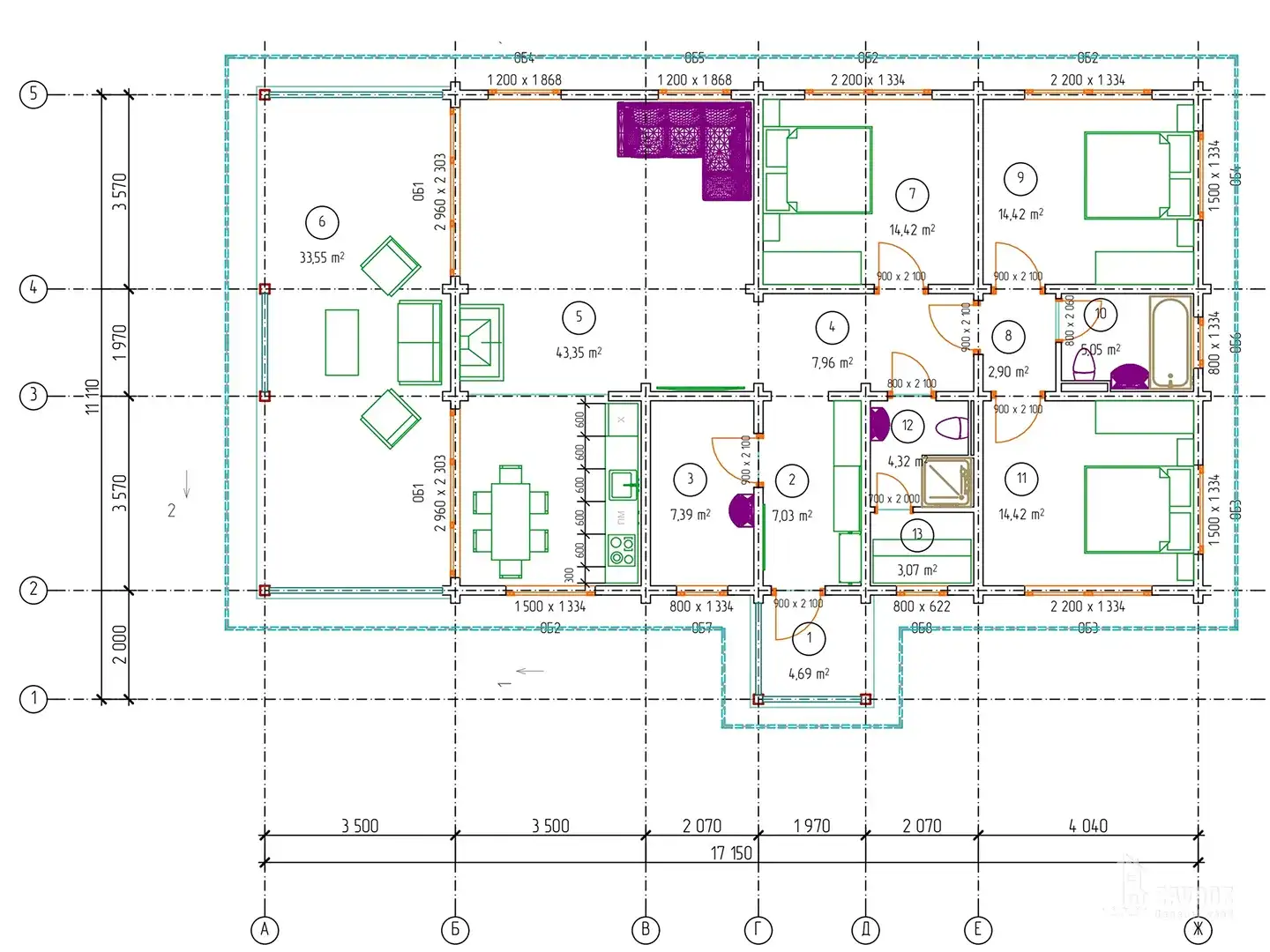
Планировка

  • Этаж 1

Дополнительные опции

Окна
Окна
Двери
Двери
Погонаж
Погонаж
Лестницы
Лестницы

Комплектации

Группа ZAVDOZ предлагает строительство дома из клееного бруса под ключ или производство домокомплекта

  • Дом под ключ
  • Домокомплект
Проектирование
Фундамент
Стеновой комплект
Кровля
Окна и двери опционально
Отделка опционально
Сопровождение строительства
Цена за домокомплект
от 4 727 000 руб.
Проектирование
Стеновой комплект
Цена за домокомплект
от 4 727 000 руб.

Похожие дома

Изображение акции
Новогодняя ёлка желаний:
дарим выгодные подарки для строительства
Подробнее