8 800 25 070 25
Режим работы 9:00 - 21:00
Заказать звонок
RU

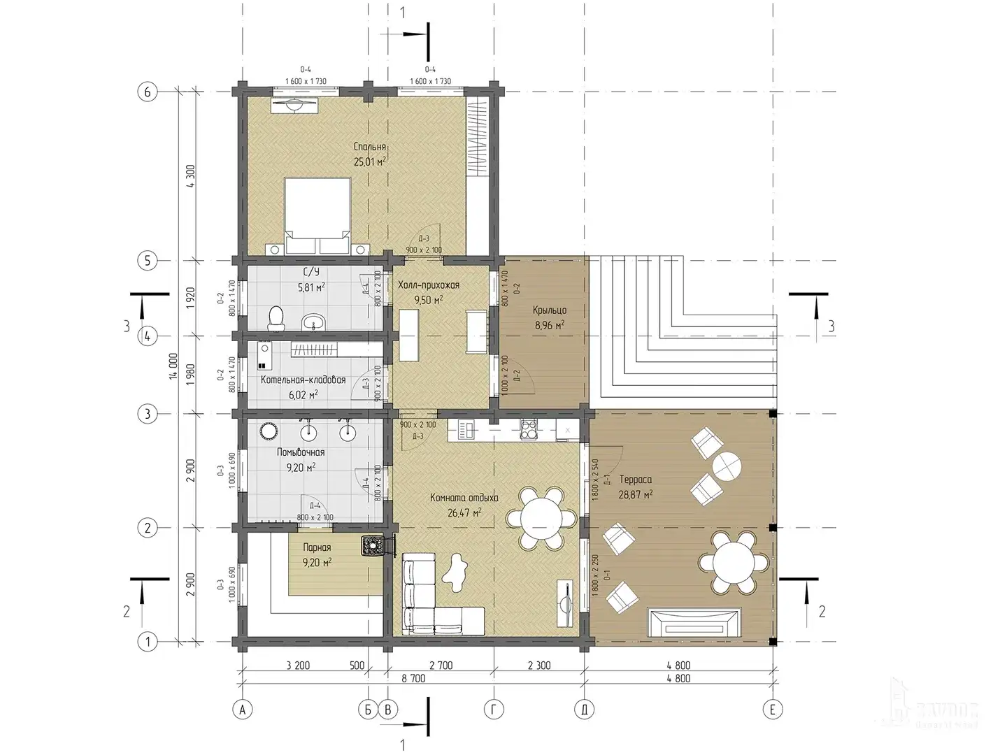
Байкал

Баня из клееного бруса со спальней и комнатой отдыха. Дополнена небольшой террасой, где можно разместить ещё одну зону отдыха

Общая площадь

129 м²

Размер застройки

14х9 м

Этажей

1

Спален

1

Санузлов

1

Стоимость строительства уточняйте у менеджера

Планировка

  • Этаж 1

Дополнительные опции

Окна
Окна
Двери
Двери
Погонаж
Погонаж
Лестницы
Лестницы

Комплектации

Группа ZAVDOZ предлагает строительство дома из клееного бруса под ключ или производство домокомплекта

  • Дом под ключ
  • Домокомплект
Проектирование
Фундамент
Стеновой комплект
Кровля
Окна и двери опционально
Отделка опционально
Сопровождение строительства
Проектирование
Стеновой комплект

Похожие дома