8 800 25 070 25
Opening hours 9:00-21:00 MSK
Callback
EN

Einbeck-2

Two-storey chalet style house with 2 rooms, 2 bathrooms and a terrace

Total area

187 м²

Размер застройки

11x10 м

Floors

2

Bedrooms

2

Bathrooms

2

Дом можно построить из ваших материалов - подробнее
Price for a house kit
from2 711 500 руб.
Check the cost of construction with the manager

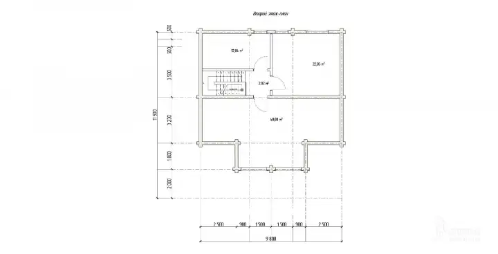
Layout

  • Floor 1
  • Floor 2

Additional options

Окна
Windows
Двери
Doors
Погонаж
wood mouldings
Лестницы
Stairs

Complete sets

The ZAVDOZ Group offers turnkey construction of a glulam house or the production of a house kit

  • Turnkey house
  • House kit
Designing
Foundation
Wall kit
Roof
Windows and doors are optional
Finishing is optional
Construction support
Price for a house kit
from 2 711 500 руб.
Designing
Wall kit
Price for a house kit
from 2 711 500 руб.
Image of promotion
Новогодняя ёлка желаний:
дарим выгодные подарки для строительства
More detailed