8 800 25 070 25
Opening hours 9:00-21:00 MSK
Callback
EN

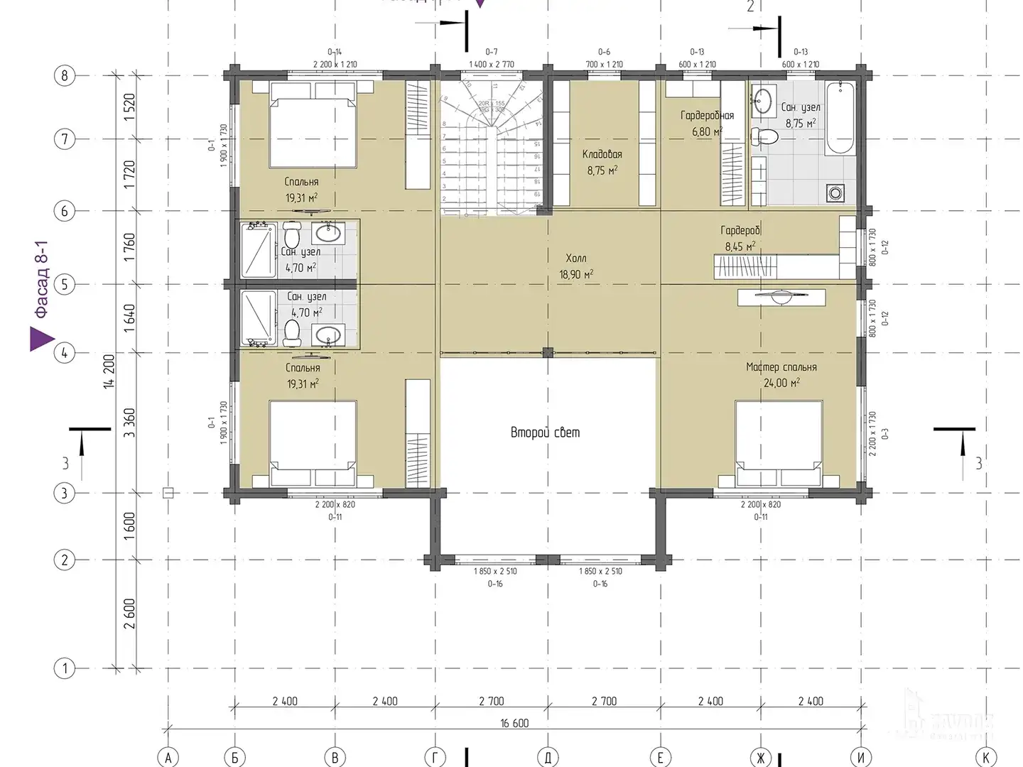
Кассель

Просторный двухэтажный дом из клееного бруса. 4 спальни, 5 санузов, сауна. Дополнен террасой, верандой и вторым светом

Total area

371 м²

Размер застройки

14х22 м

Floors

2

Bedrooms

4

Bathrooms

5

Дом можно построить из ваших материалов - подробнее
Check the cost of construction with the manager

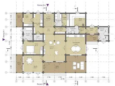
Layout

  • Floor 1
  • Floor 2

Additional options

Окна
Windows
Двери
Doors
Погонаж
wood mouldings
Лестницы
Stairs

Complete sets

The ZAVDOZ Group offers turnkey construction of a glulam house or the production of a house kit

  • Turnkey house
  • House kit
Designing
Foundation
Wall kit
Roof
Windows and doors are optional
Finishing is optional
Construction support
Designing
Wall kit